Learn about This process

map-firsr

Step 1: Collaborating

Whether you’re starting with a simple idea, detailed blueprints, or just curiosity about what we do, our Fairfield team is here to guide you. From the earliest conversations around planning and design to answering budgeting questions, we’ll partner with you to shape every detail of your project from the ground up.

map-firsr
ens

Step 2: Creating

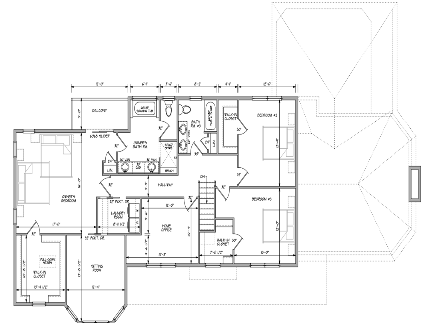
After shaping the preliminary design, Fairfield brings your ideas into focus with detailed models and drawings. Our engineers then prepare the official construction documents, giving you a complete and build-ready plan.

3rd

Step 3: Gathering

After finalizing the plans, we shift focus to materials. Partnering with our trusted suppliers, we source top-quality construction products for every stage of your home foundation materials, framing lumber, insulation, roofing, windows, and interior finishes ensuring strength, comfort, and style.

3rd
4th

Step 4: Crafting

When your construction materials arrive, our team combines proven building practices with modern technology to prepare for installation. Precision equipment ensures accuracy in cutting, shaping, and assembling structural components, while skilled craftsmen add the finishing touches that bring character and quality to your home.

last

Step 5: Assembling

When it’s time to build, delivery is carefully planned to align with your project timeline. We adapt to your needs whether that’s supplying your contractor with detailed guidance, offering hands-on installation support, or handling the assembly with our own skilled construction team.

last
Copyright © Fairfield Enterprise All Rights Reserved.

Follow Us on